商品詳細
2次元・3次元CADデータダウンロード
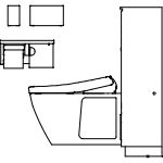
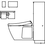
- 品 番 :
- ◆UAXC3C1A + ◆TCF5831AUR + UACN4NN111W + TH484V3 + YH191KL + ◆YKB104
- 商品名 :
- 壁掛大便器セット・フラッシュタンク式
- 給水方向 :
- 壁
- 排水方向 :
- 壁
洗面器・手洗器のあふれ面・カウンター高さについて
JIS記号・国土交通省記号品番対照表
現在の選択点数 : 3 点 / 200 点まで
2Dデータ・意匠図
2Dデータ・外形図
一括ダウンロード
商品の分類とデータ形式を選択し対象のCADデータを全て一括ダウンロードできます。



