閉じる

品番がわからない場合

商品詳細

2次元・3次元CADデータダウンロード

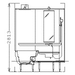
品 番 :
HKV1620UR
商品名 :
シンラHKシリーズ
タイプ :
Rタイプ
サイズ :
1620サイズ

洗面器・手洗器のあふれ面・カウンター高さについて
JIS記号・国土交通省記号品番対照表

現在の選択点数 : 0 点 / 200 点まで

3Dデータ

  • HKV1620UR_G307726_D0.DXF
    (DXF)
  • ドア位置 Bタイプ

    HKV1620UR_G307726_D11.DXF
    (DXF)
  • ドア位置 Cタイプ

    HKV1620UR_G307726_D12.DXF
    (DXF)
  • ドア位置 Dタイプ

    HKV1620UR_G307726_D13.DXF
    (DXF)

2Dデータ・意匠図

2Dデータ・外形図

一括ダウンロードへ

一括ダウンロード

商品の分類とデータ形式を選択し対象のCADデータを全て一括ダウンロードできます。

Page Top