商品詳細
2次元・3次元CADデータダウンロード
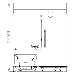
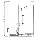
- 品 番 :
- RJV1418US
- 商品名 :
- BL認定ユニットバス
- タイプ :
- Sタイプ
- サイズ :
- 1418サイズ
洗面器・手洗器のあふれ面・カウンター高さについて
JIS記号・国土交通省記号品番対照表
現在の選択点数 : 6 点 / 200 点まで
3Dデータ
2Dデータ・意匠図
2Dデータ・外形図
一括ダウンロード
商品の分類とデータ形式を選択し対象のCADデータを全て一括ダウンロードできます。
洗面器・手洗器のあふれ面・カウンター高さについて
JIS記号・国土交通省記号品番対照表
現在の選択点数 : 6 点 / 200 点まで
商品の分類とデータ形式を選択し対象のCADデータを全て一括ダウンロードできます。