閉じる

品番がわからない場合

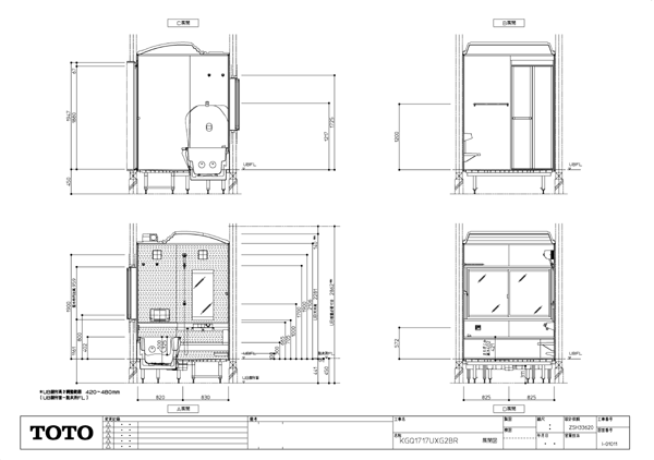
一般図サンプル

TOTOシステム商品の商品図面、お見積シート(メーカー希望小売価格)などを作成・ダウンロードできるサービスです。当コーナーのご利用にはCOM-ET会員へのご登録が必要です。

浴室 見積・商品図面請求 ご使用方法について

一般図サンプル

一般図 平面図

クリックで拡大表示します

一般図 展開図

クリックで拡大表示します

戻る

Page Top